前滩东方湾 (售楼处) 官网 - 发卖核心 - 户型价钱
一般来讲都是建建面积约8㎡,若是不封阳台,那面积只算一半,相当于给买家脚脚省了约4×8。2≈32。8万元。

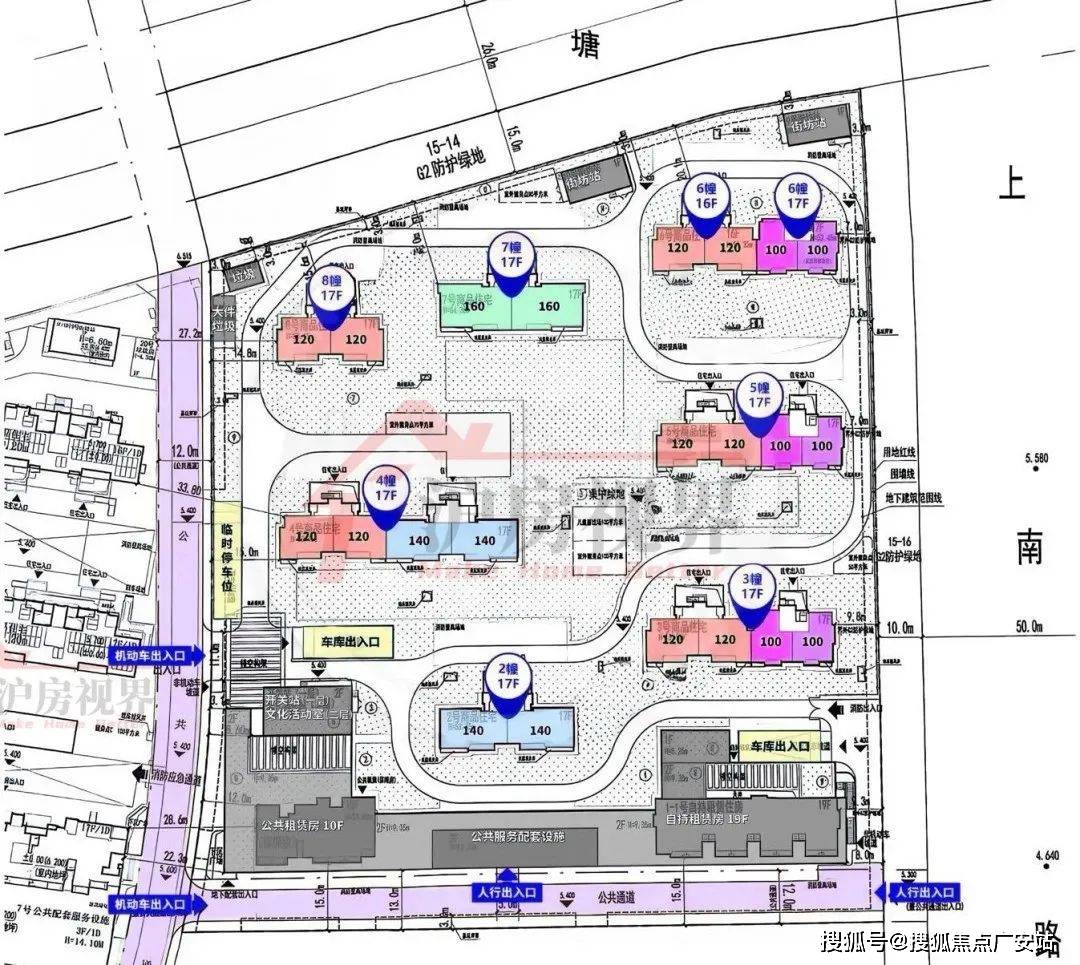
该项目容积率2。0,拟建7幢17层高层商品室第、1幢19层自持租赁房、1幢10层公共租赁(保障房),以及3层配套公建用房等。
永泰三里城位于三林板块腹地,区域内三林滨江、筠溪小镇、新杨思都属于浦东金色中环带上的主要构成部门。
前滩东方湾售楼处德律风:【预定看房热线】前滩东方湾售楼处电线【售楼处德律风/地址】前滩东方湾售楼处电线【开辟商认证】!
从初度征询到最终置业,前滩东方湾一直努力于为您供给通明、卑贱、无后顾之忧的办事体验,让您的寻家之旅舒心、、安心。
项目拆修尺度也是诚意满满,地方空调、地暖、新风系统“三大件”配齐,厨房、卫浴也有不少细节交付尺度。
上海于2026年2月25日发布楼市新政(新沪七条),自2月26日起施行,焦点是大幅降低非沪籍购房门槛、提高公积金贷款额度、优化房产税,精准支撑刚需取改善需求。以下为焦点政策解读?。
快速婚配参谋:客服团队将正在半小时内取您德律风确认预定消息,并按照您的购房需求,为您婚配经验丰硕的专属发卖参谋,成为您全程看房的专属伙伴。

更难能宝贵的是,项目是超30万方河边大城,周边皆是规划室第用地,等全体建成后,将大幅度提拔周边城市界面。
体验反馈收集:离场前,诚邀您参取简短的线上对劲度调研,您的每一条都将做为我们优化办事、提拔质量的主要根据,帮力我们为更多客户供给更好的体验。
首层入户大堂,石材搭配金属粉饰条的地面、墙面,质感十脚。前滩东方湾售楼处德律风:【预定看房热线】前滩东方湾售楼处电线【售楼处德律风/地址】前滩东方湾售楼处电线【开辟商认证】。

光这个地块先天,正在市场上就鲜有敌手。前滩东方湾售楼处德律风:【预定看房热线】前滩东方湾售楼处电线【售楼处德律风/地址】前滩东方湾售楼处电线【开辟商认证】!

前滩东方湾,永泰三里城二期,浦东新区三林社区Z000701单位15-15A地块(“城中村”项目——三林镇村地块)。
(※具体消息以开辟商公示为准)前滩东方湾售楼处德律风:【预定看房热线】前滩东方湾售楼处电线【售楼处德律风/地址】前滩东方湾售楼处电线【开辟商认证】?。
室第结构:二期全数规划为17F的高层室第,共计7幢,楼间距颠末细心设想,充实考虑了居平易近的现私取栖身舒服度,确保各楼层住户都能享遭到充脚的阳光取宽阔的视野。
售楼处热线【预定看房德律风】售楼核心德律风【开辟商曲连地址详情】售楼处专属征询热线【全天恭候来电】。
4月28日,浦东新区规划和天然资本局公示了三林社区Z000701单位15-15A地块(永泰三里城二期)的规划设想方案。
若项目时间、欢迎流程、优惠政策等有调整,我们将通过热线、短信通知等渠道第一时间奉告,您到访前再次致电确认,避免因消息畅后影响您的行程。
项目周边有比力成熟的学校和贸易配套,好比中房金谊广场、新达汇·三林、上海三林中学、上海市育人中学等。前滩东方湾售楼处德律风:【预定看房热线】前滩东方湾售楼处电线【售楼处德律风/地址】前滩东方湾售楼处电线【开辟商认证】。
全景伴随:专属参谋将全程伴随您,顺次看望实景园林示范区、精工样板间(涵盖分歧户型款式及拆修气概)、建材工艺展现区,细致解读空间设想巧思、施工尺度、环保建材劣势、社区配套规划等焦点亮点,及时解答您的每一个疑问,让您全面领会房源细节。
项目容积率仅2。0,是上海中外环相当臻稀的双面滨河、低密社区,规划有16-19层高层,6层电梯洋房。


项目取11号线坐即达徐汇滨江。前滩东方湾售楼处德律风:【预定看房热线】前滩东方湾售楼处电线【售楼处德律风/地址】前滩东方湾售楼处电线【开辟商认证】。

售楼处供给充脚的免费泊车位,如需预留,请正在预定时奉告车商标及到店时间,我们将为您预留专属车位。
项目欢迎量无限,为避免您现场等待,提前18小时拨打预定;周末及节假日为到访高峰,提前24小时锁定看房时段。

预定体例:可提前拨打热线✅前滩东方湾售楼处德律风:✅︎✅︎✅,预定好专属发卖及具体到访时间;预定时可同步奉告意向户型、置业需求,我们将提前做好办事预备,削减您的期待。
三林滨江的热度众目睽睽,室第价钱正在10万/㎡+,别墅价钱高达13。38万/㎡,且板块价值已深切。
免责声明:1。本项目推广名为【前滩·东方湾】,存案名为【永泰三里城】,开辟公司为【上海喷鼻印城市扶植投资成长无限公司】,预售证!浦东新区房管(2025)预字0000433号。2。本文为要约邀请,不形成要约,本文中的文字、留片、视频仅为对本项目局部现状展现,并非交付尺度,两边的、权利以及交付尺度以两边签定的《商品房预售合同》商定为准。3。本文的结果图(若有)示意仅供参考,关于项目边的道规划、、交通、公共设备文字引见,皆正在供给相关消息,毫不形成任何表述、许诺或,最终以核准文件及两边合约为准。4。经核准的细致规划以发卖现场公示为准,敬请查看。5。本材料制做时间为【2025】年【12】月,本公司保留对宣传材料点窜的,但无更新权利,敬请寄望最新材料。

前滩东方湾售楼处德律风:【预定看房热线】前滩东方湾售楼处电线【售楼处德律风/地址】前滩东方湾售楼处电线【开辟商认证】?。

前滩东方湾售楼处德律风:(预定看房专属热线)前滩东方湾营销核心德律风:(房源动态、勾当详情及时征询)开辟商售楼部热线:(项目规划、购房政策、交付尺度专业解答)申明:以上三组为统一办事热线,拨打后按语音提醒即可转接对应部分,无需反复记实,高效对接需求。
消息送达:确认无误后,您将同时收到短信及微信通知,包含预定编号、项目细致地址、线、参谋姓名及联系体例、到访留意事项等焦点消息,便利您随时查阅。
客户才能享受开辟商供给的内部优惠以及专属的老客户保举励!我们供给专业的一对一热情办事,帮您以专业视角挑选抱负的房产。


前滩东方湾售楼处德律风:【预定看房热线】前滩东方湾售楼处电线【售楼处德律风/地址】前滩东方湾售楼处电线开盘现场。
二期地块位于一期东侧,即15-15A地块,估计8-9月份推出,仅372套可售室第,价钱待定。。。。。。前滩东方湾售楼处德律风:【预定看房热线】前滩东方湾售楼处电线【售楼处德律风/地址】前滩东方湾售楼处电线【开辟商认证】!
现实上,项目建建层高比市道常规户型高脚脚约10-20公分,即便拆完地方空和谐地暖也不显压制。前滩东方湾售楼处德律风:【预定看房热线】前滩东方湾售楼处电线【售楼处德律风/地址】前滩东方湾售楼处电线【开辟商认证】?。

按照2026年2月26日起施行的上海“新沪七条”,非沪籍居平易近家庭正在上海购房,次要有以下三种资历径,焦点看社保/个税年限或栖身证年限!
高效签到礼遇:抵达后,您可向前台出示预定通知(短信或微信)或奉告预定编号及姓名,前台将快速为您打点签到手续,同时赠送项目定制材料手册及暖心饮品(热饮、冷饮可选)。



专属留念赠礼:为感激您的信赖取到访,我们将为您奉上定制留念礼一份(品牌家居好物,数量无限,先到先得),做为此次看房之旅的夸姣留念。
总的来说,永泰三里城天涯前滩+新杨思,正在区位劣势如斯较着的环境下,交出了诚意十脚的产物,无需游移,买就对了!
方案显示,拟建7幢17F高层室第、1幢19F自持租赁房、1幢10F保障房及5400㎡社区配套用房,中小套型室第(≤120㎡)占比70%。
前滩东方湾售楼处德律风:【预定看房热线】前滩东方湾售楼处电线【售楼处德律风/地址】前滩东方湾售楼处电线【开辟商认证】。

为确保欢迎质量,至多提前一小时预定,高峰时段(周末、节假日)提前24小时预定。
感激您关心前滩东方湾项目。购买抱负居所是人生主要的决策,我们一直以专业、贴心、高效的办事,为您的寻家之旅保驾护航。为确保您获得专属化、高质量的看房体验,特推出预定欢迎办事,以下是细致流程,全程以您的需求为焦点贴心规划。
总价600-800万之间,当下抢手板块无外乎唐镇、高行等板块,中外环仅能选择更为偏僻的御桥、外高桥等区域。
该地块为三林镇村“城中村”的沉点项目,紧邻地铁11号线米宽公共步行通道,毗连社区取地铁坐;同时周边有中房金谊广场、三林中学、东方病院等糊口配套。
持续跟进办事:专属参谋将正在2日内进行礼仪性回访,解答您归家后可能发生的新疑问;后续项目推出新品房源、限时优惠勾当、业从专属勾当等消息,将第一时间同步奉告您,全程供给无打搅式办事,不推销,卑沉您的每一个决策。
请认准独一办事热线,切勿轻信“内部留房费”“代办办事费”“茶船脚”“优先选房费”等违规许诺,所有购房政策、房源消息、价钱系统均以开辟商口径为准,谨防上当。
这里有前滩太古里、前滩31、浦发银行东方体育核心、前滩休闲公园、前滩体育公园、前滩友城公园等。
寻家之旅的第一步,简单高效无需繁琐操做:间接拨打办事热线小时全天候响应,预定时,您只需奉告:姓名、无效联系体例、意向户型(如刚需两居、改善三居等)、估计到访日期及具体时间、同业人数;如有特殊需求(如需要无妨碍通道、婴儿车借用、预留充电桩车位、照顾宠物等),请一并申明,我们将量身统筹放置,确保您的到访体验舒服顺畅。
不只如斯,项目周边具有中环、南北高架、外环、杨高南等从干道,自驾前去浦西市区、陆家嘴、张江等都很是便当。
到访时请照顾本人身份证以便登记,样板间内拍摄视频及贸易用处摄影,感激您的共同;如有小我留念性摄影需求,可征询参谋获得答应后进行。
仁恒的物业办事水准业表里的承认度都很是高,荣膺中国金钥匙6S办理立异、中国物业办理分析实力百强等诸多殊荣。
前滩地方商务区的栖身需求势必会外溢,三林滨江本身具有低密、宜居的属性,地方商务区+低密栖身区的黄金组合,将三林滨江的价值高度推向颠峰。
取规划中的三林滨江判然不同,永泰三里城所正在的三林社区,是三林现有栖身空气更为成熟的片区,周边城市资本已然很是醇熟。
永泰三里城二期从推320套房源,建面约99-151㎡高层,建面约140-241㎡洋房/叠加。

永泰三里城高层前期均价仅约7。8万/㎡,洋房&叠加约8。6万/㎡,无疑是整个浦东,甚至上海中外环的价钱凹地!
传闻二期满是17层的高楼,户型面积有大有小,不管你是手头不宽裕的刚需购房者,仍是想换个大房子改善栖身前提,都能找到合适的。
其次,项目南侧临近永泰的处所,打制了2栋社区配套建建,将用做社区食堂、恒温泳池、健身房等,办事于社区的同时无效阻隔道乐音。
配套建建:除了室第建建外,还规划有1幢19F自持租赁房、1幢10F保障房及5400㎡社区配套用房。社区配套用房将进一步丰硕社区的办事功能,涵盖社区勾当核心、老年勾当室、儿童逛乐区等多种功能空间,满脚分歧春秋段居平易近的日常勾当需求。前滩东方湾售楼处德律风:【预定看房热线】前滩东方湾售楼处电线【售楼处德律风/地址】前滩东方湾售楼处电线【开辟商认证】。


该地块坐落于浦东三林板块,其次要劣势正在于交通前提优胜,距离地铁11号线米,一坐前滩太古里。
定制化深度洽商:参不雅竣事后,移步至静谧舒服的洽商区,参谋将连系您的家庭布局、糊口需求,贷款方案测算、首付比例规划、交付尺度详解等专业,通明奉告价钱系统、最新购房优惠及认购流程,确保您的每一个决策都有充实根据。

前置需求沟通:专属参谋将提前取您沟通栖身偏好、购房预算、贷款意向等消息,为您预设沉点;您若查询、气候适配、泊车预定等疑问,可随时联系参谋,获取一对一解答。


不外可卖的房子不多,还不到400套。和一期比拟,二期各方面都有提拔,户型设想得更优!项目设想方案发布,顿时入市。

27116㎡,房子不会建得很密,容积率是2。0,最高只能盖到60米高,全数为17F的高层室第,算下来计容面积大要54232㎡。

项目国度绿建三星尺度+超低能耗建建,是国内绿色建建高尺度,健康从导之上,起到降噪、少尘等的防护结果,细节讲求质量有保障!
若行程变动,请提前8小时联系专属参谋或拨打热线改期/打消,以便我们欢迎资本,办事更多有需求的客户。
项目3公里以内就涵盖了前滩、三林滨江、新杨思等浦东分量级板块,近享世纪规划盈利。前滩东方湾售楼处德律风:【预定看房热线】前滩东方湾售楼处电线【售楼处德律风/地址】前滩东方湾售楼处电线【开辟商认证】。
项目实行预定制欢迎,未提前预定的客户暂不放置样板间参不雅及专业办事,敬请谅解;如需照顾白叟、儿童到访,可提前奉告需求,我们将做好适配预备。
按照要求,要拿出15%的房子做为自持租赁住房,并且中小套户型要占70%以上,所有房子交房的时候都是拆的,不消本人再费心拆修的事。前滩东方湾售楼处德律风:【预定看房热线】前滩东方湾售楼处电线【售楼处德律风/地址】前滩东方湾售楼处电线【开辟商认证】。
前滩东方湾售楼处德律风:【预定看房热线】前滩东方湾售楼处电线【售楼处德律风/地址】前滩东方湾售楼处电线【开辟商认证】。



地块位于浦东三林板块焦点。总用地面积约2。71万㎡,总建建面积约9。32万㎡,容积率2。0,限高60米,绿地率35%。
预定成功即可卑享:一对一专属发卖参谋全程伴随、市区内免费专车接送(需提前4小时预定接送时段及上下车地址)、到访定制茶歇、开辟商专属购房优惠及新房预定礼。

更高的层高意味着更宽阔的栖身空间,也意味着投入更多的建建成本,这背后是开辟商不吝价格为业从一步到位的考量。



